Подпишитесь на нас в Telegram Самая актуальная информация, новости, акции и новые проекты
Может быть построен из керамических блоков Porotherm и по каркасно-панельной технологии prefab
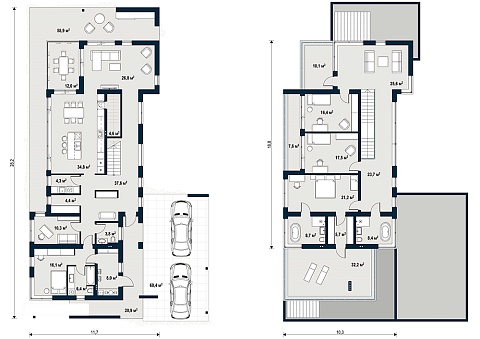
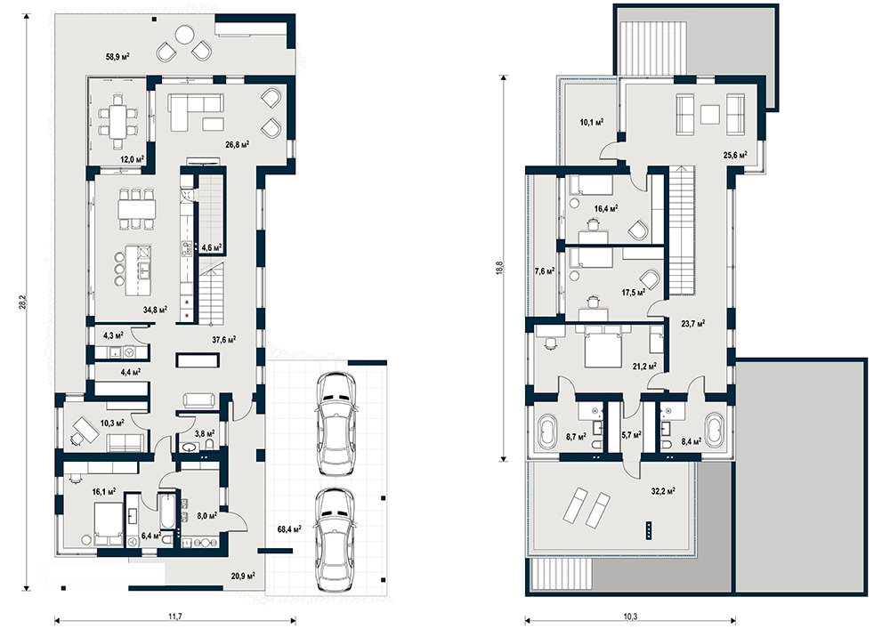
Проект V4
Площадь, м²
296
Спальни
5
Санузлы
4
Посмотрите, как рождаются наши дома
Мы показываем строительство честно - без фильтров и маркетинга
На канале делимся опытом, технологиями и живыми историями домов Nordic
На канале делимся опытом, технологиями и живыми историями домов Nordic
Ипотека эскроу с Нордиквуд – это просто!
Сопроводим на всех этапах, поможем с документами. Рассчитаем оптимальный платеж.
Опыт и надежность
Большой опыт заключения сделок с использованием счетов эскроу - знаем все тонкости и требования банков
Наличие проектного финансирования - построим ваш дом качественно и в срок
Юридическая безопасность
Подробная проверка ЕГРН и ГПЗУ кадастровым инженером-юристом
Гарантия безопасности сделки и регистрации будущего дома
Удобство и простота
Обеспечиваем полное сопровождение клиентов от начала строительства до ввода дома в эксплуатацию
Экономия средств
Подберем выгодные банковские условия — низкие ставки без субсидирования и оптимальные платежи
|
Комплектация
|
Стандарт
По запросу
|
|---|---|
| Фундамент ж/б плита 250 мм | |
| Стены из керамических блоков Porotherm 380 Thermo | |
| Фермы заводского изготовления на МЗП | |
| Кровля металлочерепица | |
| Водосточная система ПВХ | |
| Окна с односторонней ламинацией |
Стандарт
Получить смету
По запросу
- Фундамент ж/б плита 250 мм
- Стены из керамических блоков Porotherm 380 Thermo
- Фермы заводского изготовления на МЗП
- Кровля металлочерепица
- Водосточная система ПВХ
- Окна с односторонней ламинацией
Современное производство полного цикла
Наблюдайте в режиме реального времени, как изготавливается ваш дом.








