Строительство за 16 дней!
Средний срок строительства дома по панельно-каркасной технологии на готовом фундаменте с запуском всех инженерных систем. Это особенно выгодно для реализации проектов под аренду.
Полное заводское изготовление
Собственное производство полного цикла в Костроме
Под ключ
От проекта до финишной чистовой отделки с одной компанией — удобно, выгодно и безопасно. Мы отвечаем за качество на каждом этапе создания дома: от проектирования и производства конструктивных элементов, сборки и проведения коммуникаций, до передачи дома Заказчику.Наши дома не требуют подключения газа для отопления - это не окупится
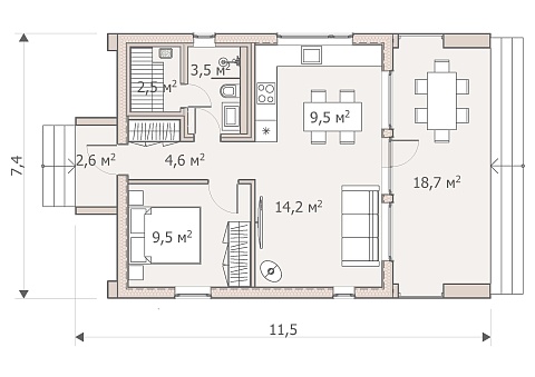
Barn 70
Площадь, м²
70
Спальни
1
Санузлы
1
Планировки
Посмотрите, как рождаются наши дома
Мы показываем строительство честно - без фильтров и маркетинга
На канале делимся опытом, технологиями и живыми историями домов Nordic
На канале делимся опытом, технологиями и живыми историями домов Nordic
Ипотека эскроу с Нордиквуд – это просто!
Сопроводим на всех этапах, поможем с документами. Рассчитаем оптимальный платеж.
Опыт и надежность
Большой опыт заключения сделок с использованием счетов эскроу - знаем все тонкости и требования банков
Наличие проектного финансирования - построим ваш дом качественно и в срок
Юридическая безопасность
Подробная проверка ЕГРН и ГПЗУ кадастровым инженером-юристом
Гарантия безопасности сделки и регистрации будущего дома
Удобство и простота
Обеспечиваем полное сопровождение клиентов от начала строительства до ввода дома в эксплуатацию
Экономия средств
Подберем выгодные банковские условия — низкие ставки без субсидирования и оптимальные платежи
Современное производство полного цикла
Наблюдайте в режиме реального времени, как изготавливается ваш дом.













